
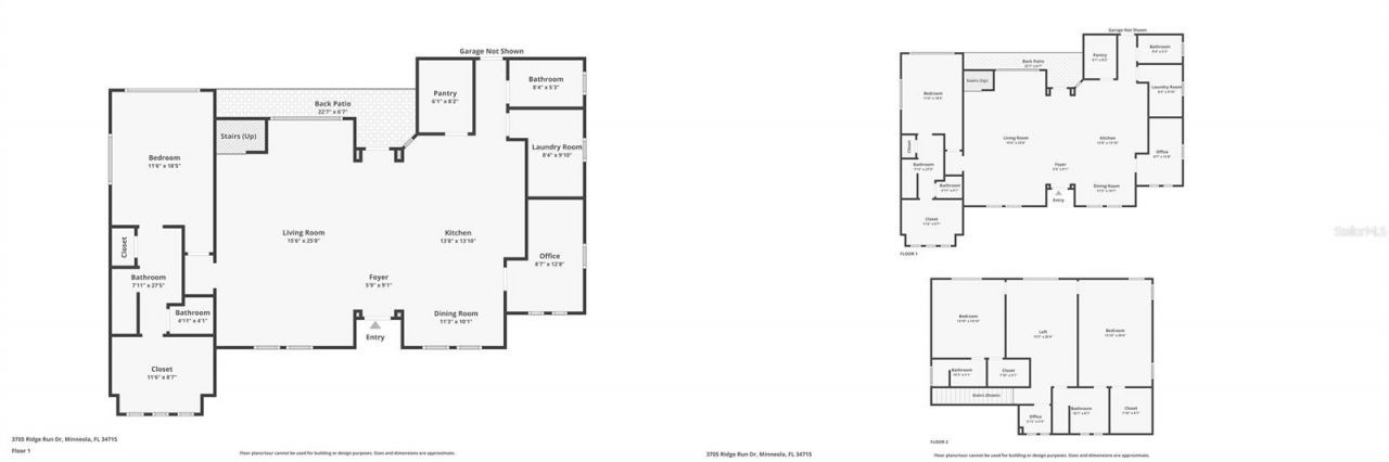
Come see this Slice of Heaven near the New Construction hub along N. Hancock Rd. in Minneola! Future easy access to the West Orange Trail! Make this your dream home in the gated Sugarloaf Mountain community of Minneola, perched on a high elevation along the Central Florida Ridge where luxury and craftsmanship come together. Built in 2022, this custom Craftsman masterpiece offers over 3,000 square feet of refined living, featuring 3 bedrooms, 3.5 bathrooms, and an impressive 4-car garage-perfect ...Come see this Slice of Heaven near the New Construction hub along N. Hancock Rd. in Minneola! Future easy access to the West Orange Trail! Make this your dream home in the gated Sugarloaf Mountain community of Minneola, perched on a high elevation along the Central Florida Ridge where luxury and craftsmanship come together. Built in 2022, this custom Craftsman masterpiece offers over 3,000 square feet of refined living, featuring 3 bedrooms, 3.5 bathrooms, and an impressive 4-car garage-perfect for buyers who demand both elegance and functionality.From the moment you arrive, the home makes a statement. A lush, landscaped lawn, flagstone walkway, and classic tile rocking-chair front porch lead to a tall custom entry door, setting the tone for the craftsmanship found throughout.Step inside and prepare to be wowed.The main living space showcases soaring ceilings, elegant porcelain tile flooring, and a stunning modern floating wood staircase. A dramatic wall of glass floods the home with natural light while framing peaceful views of the private lanai-creating the perfect blend of indoor and outdoor living.The chef's kitchen is designed to impress with: Premium quartz countertops Custom all-wood cabinetry Built-in appliances Stylish granite sink Oversized walk-in pantry with a barn door accentJust outside, the oversized covered lanai becomes your private resort. Enjoy evenings entertaining with a fully equipped summer kitchen, relax in the 15-jetted high-pressure spa, or gather with friends on the spacious paver patio areas.The primary suite on the main level is a true retreat featuring:-Oversized marble floor shower-Dual vanities-Private water closet-Massive 10x12 walk-in closet with custom built-ins and natural lightAlso on the main level: a private office, stylish half bath, and upgraded laundry room with sink, quartz counters, and abundant cabinetry.Upstairs, the custom floating staircase leads to a spacious bonus room, two oversized bedrooms with walk-in closets and en-suite baths, plus an office nook. Every upstairs room enjoys spectacular sunrise views of Lake Apopka on the horizon.This home also delivers rare high-end construction features, including: Dual 20 SEER HVAC systems with HALO air purifiers Integrated damper system & linear slot diffusers Spray foam insulation in roof, attic, walls, and garage Soundproofing for upstairs rooms Inspired Shade window coveringsLocation is everything-and this one is exceptional. Just minutes from: Montverde Academy Green Mountain Scenic Overlook Lake Minneola High School The Clermont Chain of Lakes Florida's Turnpike & Orlando attractionsHomes with this level of design, efficiency, and mountain-ridge elevation views rarely become available.Luxury. Privacy Craftsmanship.This is more than a home - it's a lifestyle.Schedule your private showing today and make this custom Sugarloaf Mountain masterpiece your NextHome.
View MoreCourtesy of
Agency Name: NEXTHOME LOTT PREMIER REALTY
Agency Contact: 407-222-0495
Agent Name: Corey Lott
Presented by
Agent Name: Team CSR
Agent Phone: 954.475.9813
Agency Title: The Keyes Company
Request Info
Send an email with a link to
3705 Ridge Run Drive, Minneola, FL 34715.
Email 3705 Ridge Run Drive, Minneola, FL 34715
Thank you for your inquiry! As a thank you, we have a Special Mortgage Offer for You.
We would like to provide you a free, no-obligation, home loan pre-approval review.